ReRender

Tek Ailelik Ev,
Cam Minimalizm
Orijinal
Source Image
Yüklendi
Oluşturulan(1344x768)
source
2.61%
Result Images
Result Images
Result Images

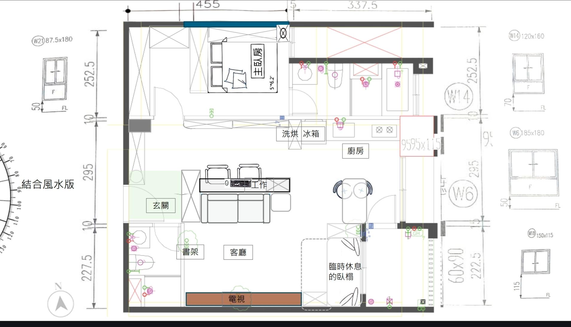
An incredibly lifelike, richly detailed, photorealistic floor plan photo of a modern country single-family home set in a coastal environment. The scene is illuminated by bright midday summer sun, creating a clear, airy atmosphere. Captured with a wide-angle lens, emphasizing the clean lines and meticulous detail of the architectural design. Sunlight streams in, highlighting the natural wood textures and glassy minimalist finishes throughout the open-concept living space. The floor plan clearly delineates distinct zones for living, dining, and kitchen, with a prominent entertainment unit suggesting a welcoming television area. Elsewhere, a compact yet functional kitchen area is equipped with modern appliances, balanced by the promise of relaxation in a designated lounge space. The overall impression is one of elegant simplicity and understated luxury, perfect for a tranquil coastal retreat.


Use the extensionSketchUp
Follow usInstagramYouTubeLinkedIn
Join the discussionReddit