ReRender

Oda Kahvaltı,
Yeni İngiliz Kulübesi
Orijinal
Source Image
Yüklendi
Oluşturulan(768x912)
source
2.94%
Result Images
Result Images
Result Images
Daha Fazla Göster

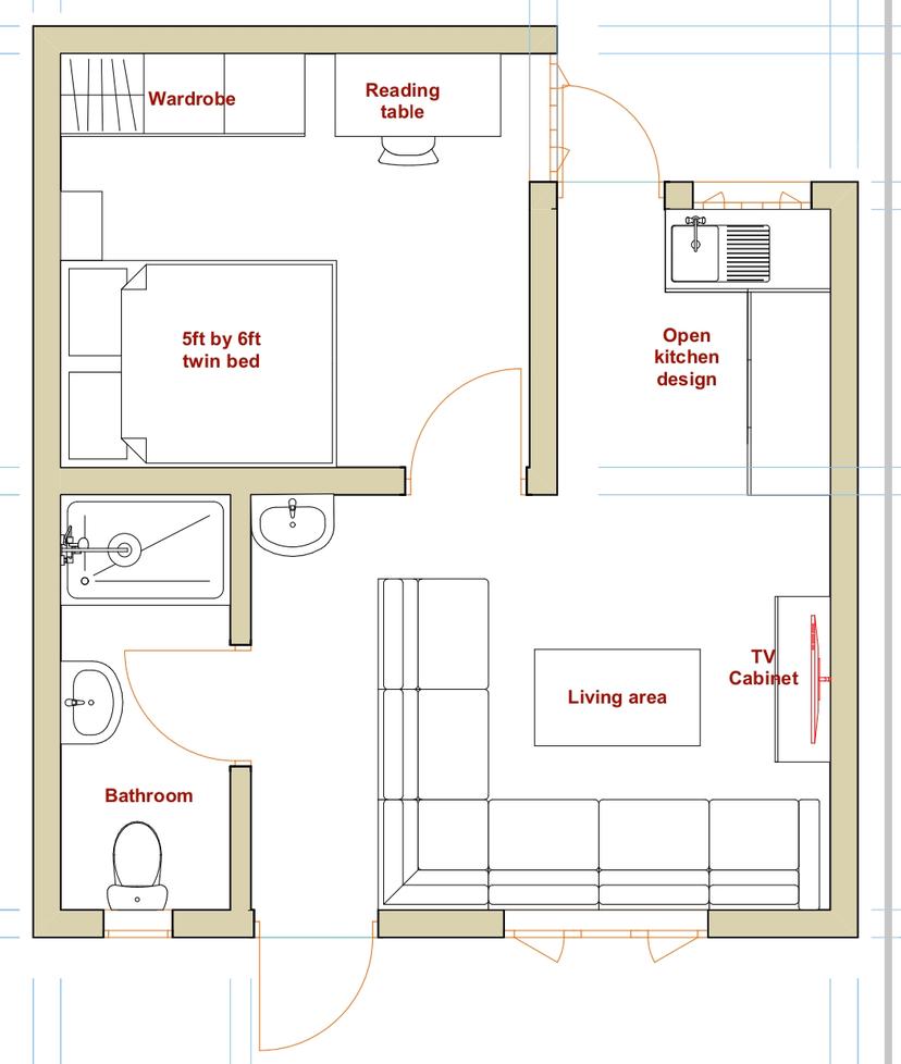
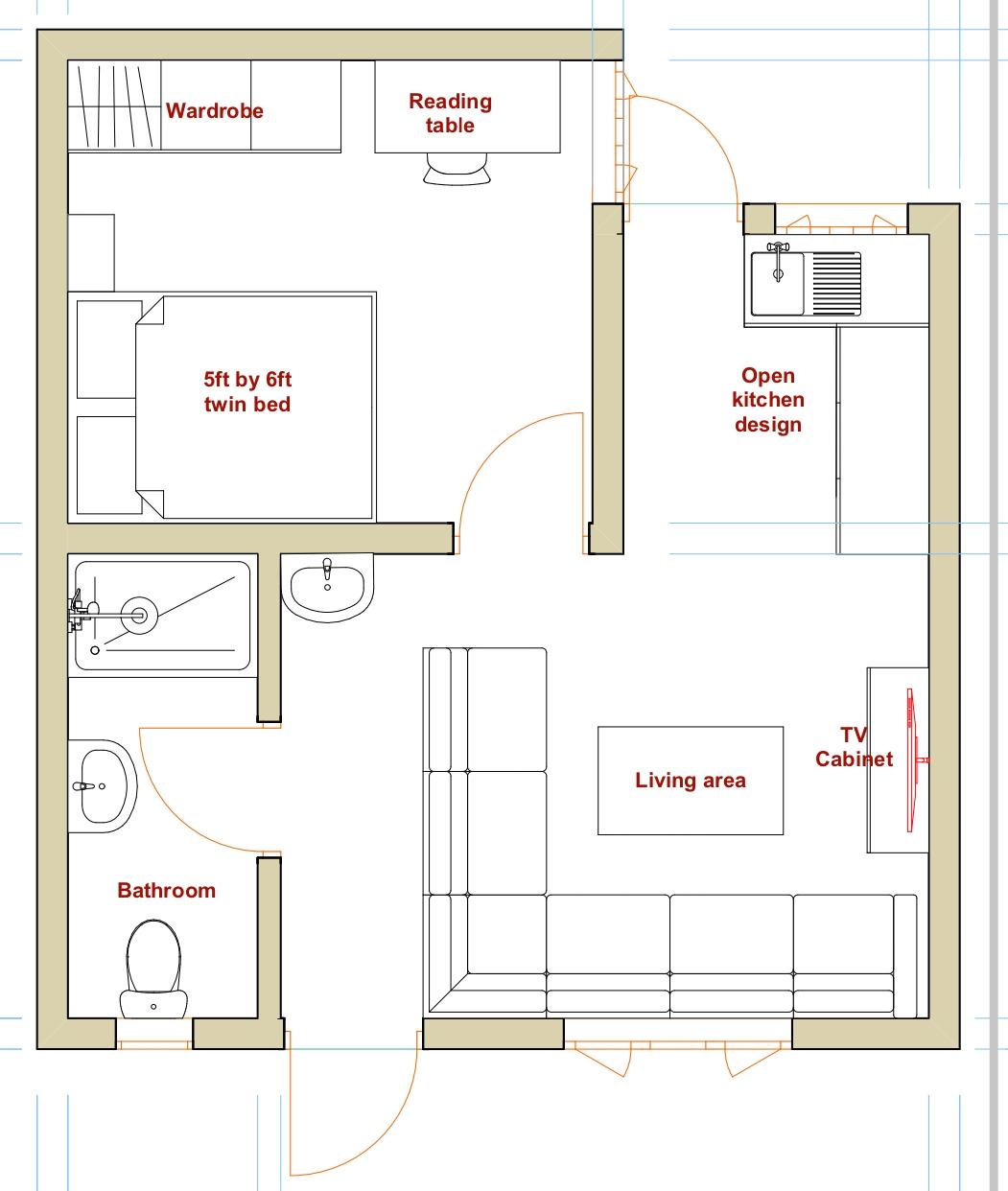
An incredibly lifelike, richly detailed, photorealistic floorplan photo of a studio apartment's living area, bedroom, and open-concept kitchen, set in a New England cottage infused with tropical vibes. The scene is illuminated by soft, diffused midday light filtering through unseen windows on a cloudy spring day, creating a serene yet inviting atmosphere. Captured with an architectural lens, emphasizing the warm and neutral tones of the modern interior design, the photograph showcases the textures of natural wood elements, possibly from the flooring or subtle cabinetry accents. In the foreground, a plush, sectional sofa in a neutral beige or cream occupies the "Living area," inviting relaxation, while a sleek "TV Cabinet" stands against one wall. To the left, the "Bedroom" features a neatly made "5ft by 6ft twin bed" with crisp white linens and two pillows, adjacent to a minimalist "Wardrobe" with clean lines. Across from the living space, the compact "Bathroom" is visible, containing a bathtub, toilet, and sink, all rendered in clean white porcelain. A small "Reading table" is positioned near the bedroom's doorway. The "Open kitchen design" to the right is characterized by modern appliances and countertops, seamlessly integrated into the living space. The overall impression is one of cozy sophistication, a tranquil retreat reminiscent of a high-end bed and breakfast, where comfort and style blend effortlessly.


Use the extensionSketchUp
Follow usInstagramYouTubeLinkedIn
Join the discussionReddit