ReRender

Konut,
Şık Uluslararası
Orijinal
Source Image
Yüklendi
Oluşturulan(1672x768)
source
4.39%
Result Images
Result Images
Result Images
Daha Fazla Göster

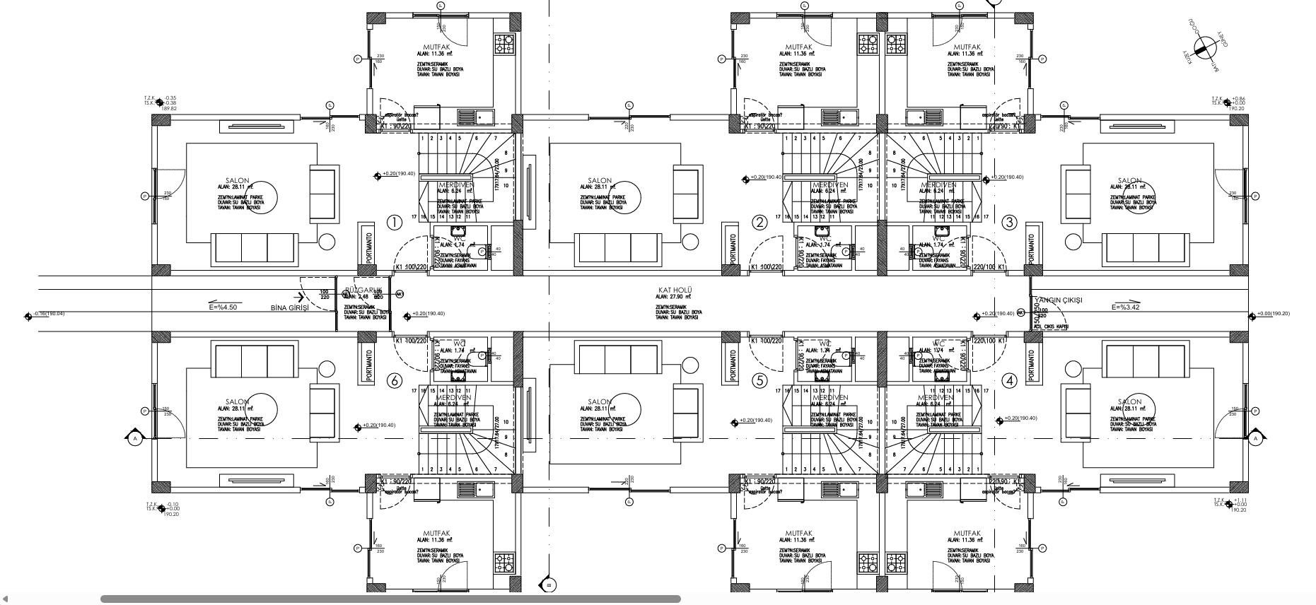
An incredibly lifelike, richly detailed, photorealistic floorplan photo of a sleek, modern condominium layout. The scene is illuminated by bright, even lighting, creating a clean and functional atmosphere, as if captured in a professional architectural shoot with a wide-angle lens, emphasizing the precise lines and spatial relationships. The composition is top-down, showcasing the symmetrical arrangement of living spaces, mirrored apartments, and central stairwells. Each unit features a spacious living room with minimalist sofa arrangements, a compact kitchen with detailed renderings of appliances, and well-defined hallways and entryways. Diagonal lines of the staircases create dynamic visual interest against the orthogonal grid of the rooms, while subtle shading within the walls and doorways suggests depth. Background elements are absent, focusing entirely on the architectural blueprint-like clarity of the floorplan's details. The sense of depth is conveyed through the overlapping forms of rooms and corridors, as if seen through a perfectly clear pane of glass, revealing the interconnectedness of the living units within the condominium structure.


Use the extensionSketchUp
Follow usInstagramYouTubeLinkedIn
Join the discussionReddit